Can we add a finer grain to density?

Victoria Dr

Private

Vancouver, British Columbia, Canada

2025

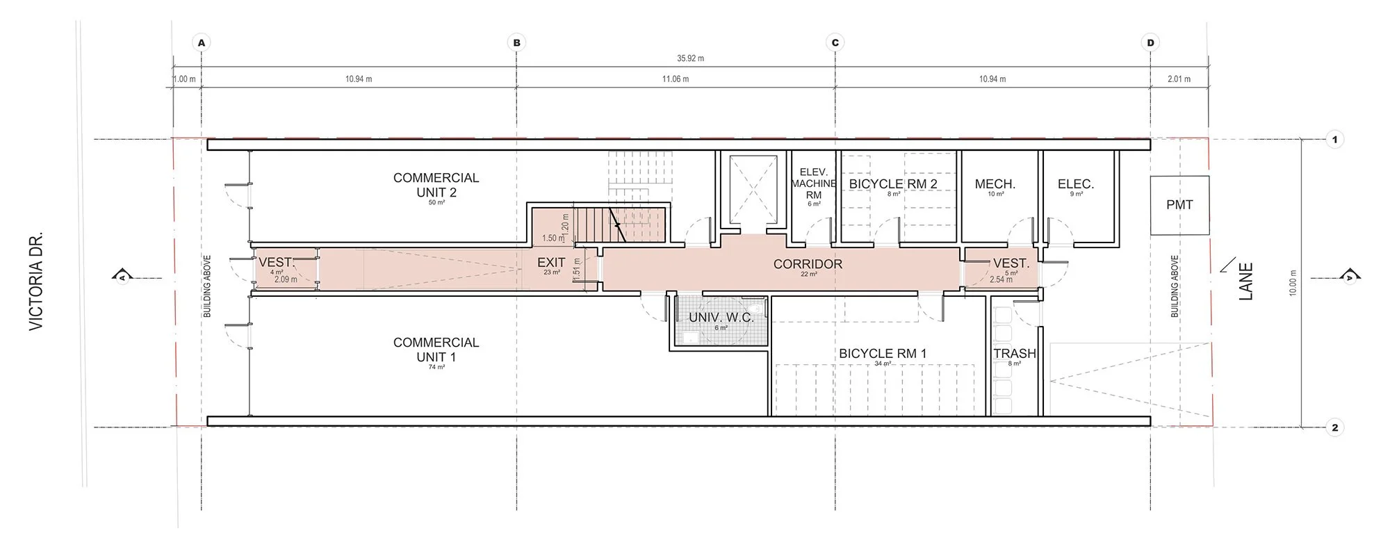
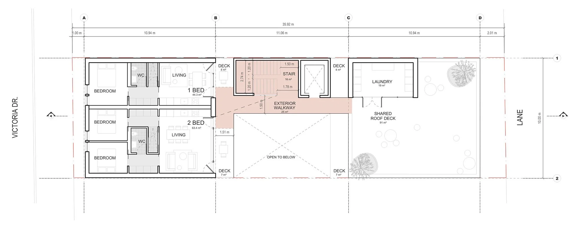
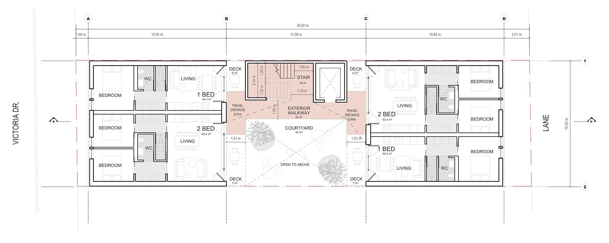
A collaboration with AIRStudio, the project started as an alternative solution submitted to the City of Vancouver for a six-storey mixed-use apartment building proposed to be constructed with a single exit stair serving the residential occupancies above grade. The building contains two commercial units on the ground floor and four dwelling units on each of the upper floors. The small number of dwellings is anticipated to foster a sense of community among neighbours, centred on a shared courtyard.

In Vancouver, the standard lot width of 33’ (10m) is often achieved by combining multiple adjacent properties to develop large mid-rise buildings (with a double-loaded corridor floor plan served by two exit stairs). However, the proposed development on a single property provides the type of medium-density housing encouraged by recent planning policy reforms in the City of Vancouver.

As a result of the single-exit stair design, 18 homes can be built in the 6-storey building, whereas only 13 would otherwise be feasible. The proposed design features an exterior passageway and a partially enclosed exterior exit stair to encourage daily use and provide passive smoke protection benefits.

THE SINGLE STAIR (OR POINT STAIR)

View into the Courtyard

More recently, the City of Vancouver has amended the Vancouver Building By-Law to allow Single Exterior Exit Stair Building Designs (with an exterior exit stair and exterior passageway), so this alternative solution can be more easily compared to the performance levels of the most relevant acceptable solutions in the VBBL.

The View from the Laneway

Courtyard View from the Kitchen

  • JIM

    James Huemoeller

  • AIRStudio

    Inge Reocker

Previous
Previous

Surrey Park Washroom

Next
Next

Nelson Laneway