BC Builds Cranbrook Project Kicks-off!

Community Connections Society of Southeast BC (CCS), New Dawn Developments (New Dawn), CitySpaces Consulting (CitySpaces), and JIM Architecture (JIM) were awarded the BC Build Cranbrook project to develop 30 new homes in downtown Cranbrook.

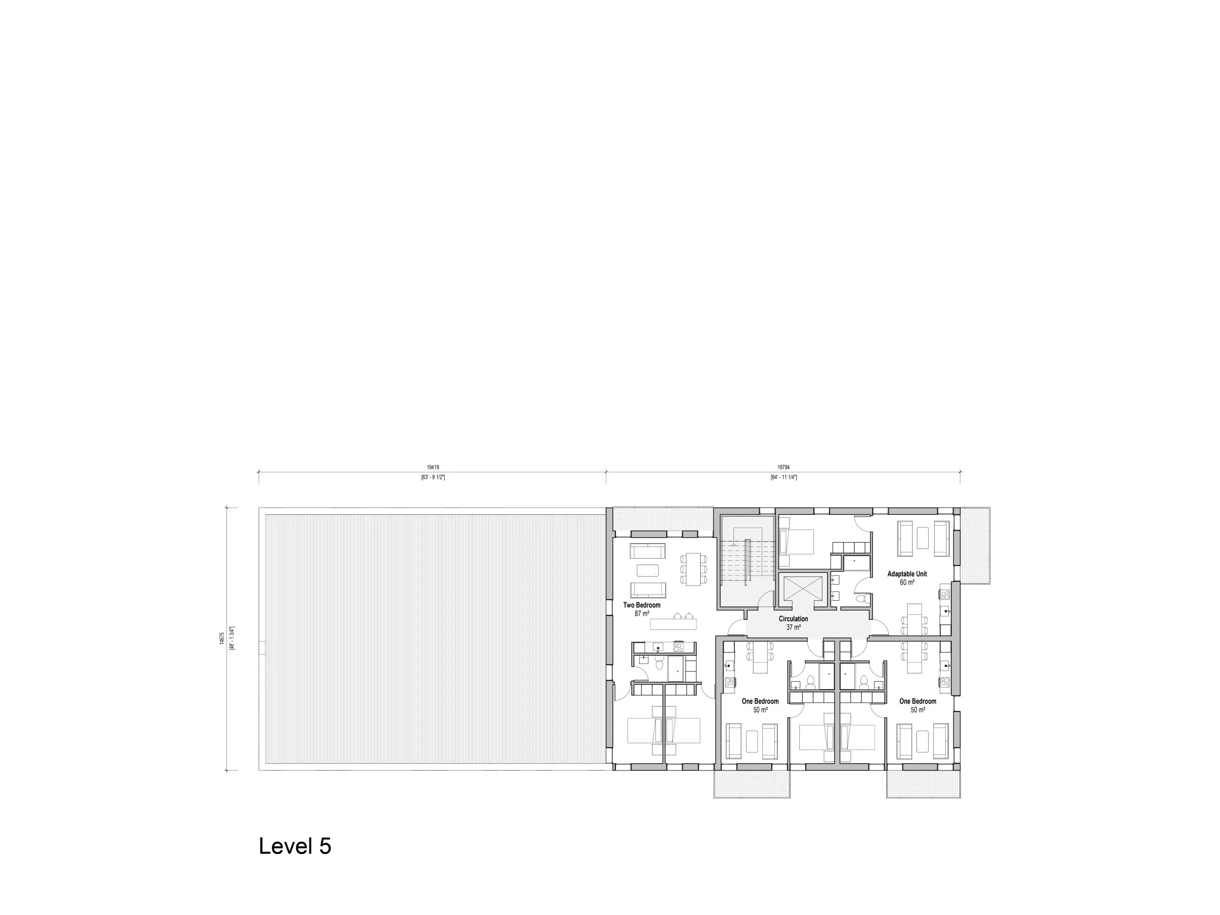
The proposed development at 1501 1st Street will create 30 homes in downtown Cranbrook, which aligns with the directives identified in the City’s Downtown Revitalization Master Plan. By creating diverse housing choices in downtown Cranbrook, this project helps bring people downtown and enhances the identity of downtown with thoughtful design and engaging street-level spaces. The development encourages ground-floor activity and supports a strong sense of community, which will revitalize the area, enhance social well-being, and promote connectivity through high-quality, durable construction. The project site is strategically positioned close to transit, schools, shopping, and park space. Located in between the buildings that form part of the Baker Gardens seniors housing development, the site offers a prime opportunity for a mixed-use medium density development.

To ensure the building maintains the four-storey zoning restriction but still steps in response to the building program, the design team split it into two, taking advantage of recent changes to the building code that allow for a single egress stair. Although new to British Columbia, the design team brings extensive experience with this typology, including work on a CHMC-funded project, Victoria Drive, that will further push the initial code requirements.

With two independent four-storey structures, each meets zoning individually, but by connecting them, the project can maintain more efficiency. Even more importantly, the single staircase allows the project to provide high-quality housing, with each unit having access to ample daylight and natural ventilation. Currently, in Canada, there is still a negative connotation with denser forms of housing relative to the dominant single-family housing. Yet as housing shortages become more acute, denser housing typologies are critical to meeting demand. However, it cannot just be a question of building volume, but also of maintaining high quality and changing public perception of compact living. We believe our proposal will play an essential role in providing needed housing for the Cranbrook market and challenging preconceived ideas of what is possible.

Another key component of dense living is an improved urban landscape with better connectivity to the surrounding city. As mentioned, pushing the building to the south improves the project's visibility, a key component to the success of the ground-level commercial unit. The benches and seating on a small plaza in front of the CRU entrance could eventually lie on a new lane connecting Baker Park Field to the Senior Centre. A courtyard to the north provides an additional seating area and an amenity space for the building's residents. Native plantings to buffer the surrounding residents and parking areas provide a low-maintenance, seasonal frame for these outdoor rooms.

Bright, airy apartments and a vibrant landscape provide a solution to a challenging site, forming a new standard of living for Cranbrook and improving a critical node within the city.

Previous
Previous

BC Builds Cranbrook Project Hopes to Catalyze a New Urbanism in Downtown Cranbrook

Next
Next

Davies Orchard Cottages Nearing Completion