
How do we acknowledge the constructed landscapes that support our urban future?
Korea Museum of Architecture and Urbanism
Competition
Sejong, Korea
2020
A museum of urbanism and architecture should represent not just the urban fabric of Korea but the long, contingent processes of city-making that brought this fabric into being. In this sense Sejong and, more specifically, the National Museum Complex present a unique challenge: sitting on imported fill capping the agricultural flood plain, the site is purpose-built and patently artificial.


Excavated Cut

Structured Ground

Exhibition & Workshops

Arrival & Approach

Threshold

Media & Research
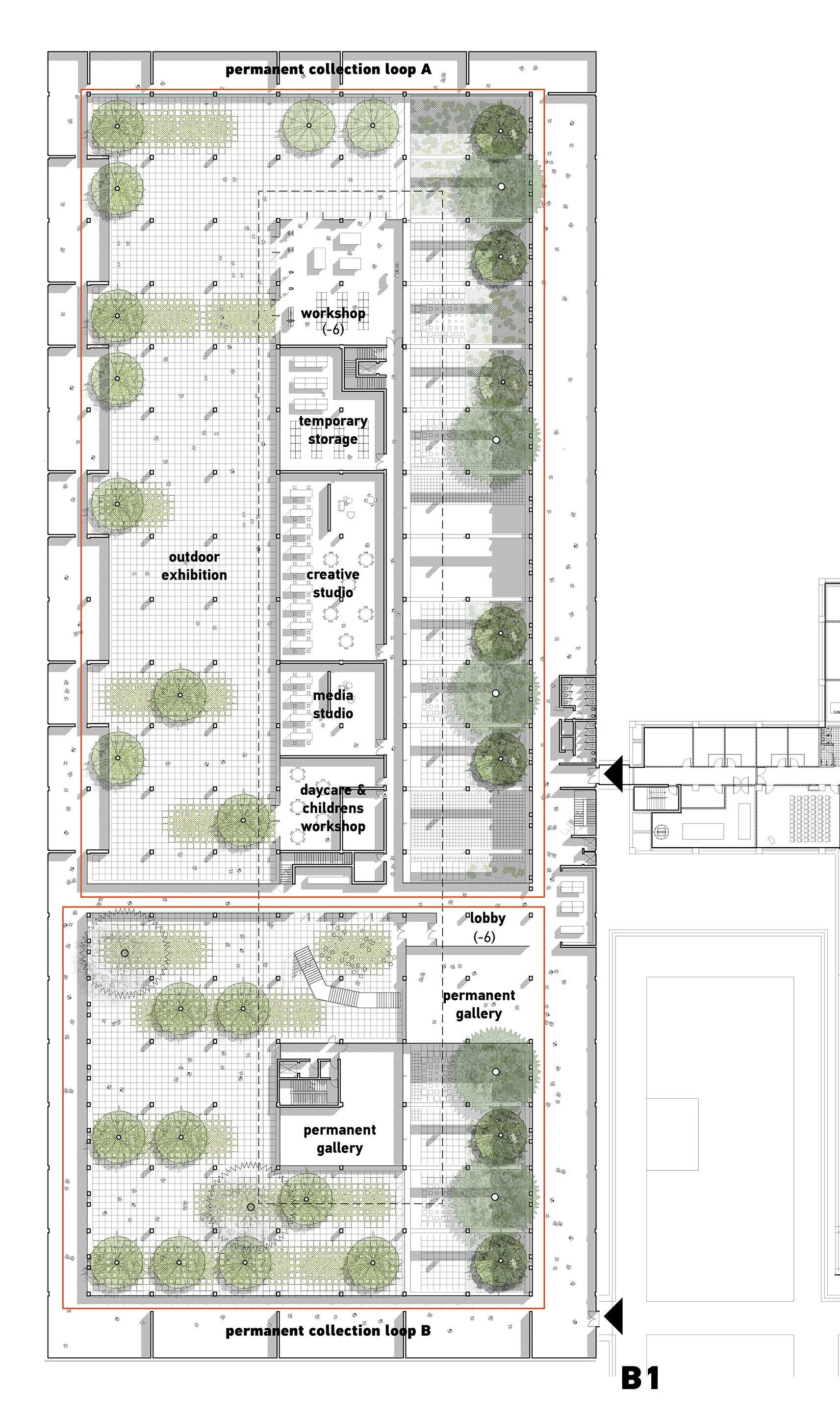
Our project exposes and engages this constructed context. By excavating the non-ground and emphasizing the autonomous grid that overlies the larger museum complex, the design lays bare the artifice of mineral and metal. The arcade wrapping the perimeter of the site extends the larger assembly upward to establish a clear threshold into the museum. Below the arcade, permanent exhibition space rings a durable garden plaza. In this way, gallery and ground are brought into dialogue. Exhibited work, itself a representation of the built environment, sits in the remnant space of a volume extracted to challenge the very foundations on which the complex is built.

On this layered ground, a horizontal lantern rises above the museum complex and the screened arcade as a new urban landmark in the emerging city of Sejong. Connected to the grid below, a bar of research, education, and multifunction program shifts to open two interior garden courts. Visitors wander a series of intersecting routes through the various curatorial experiences of this contemporary museum. As they progress up through the museum, they look out from large punched openings in the public rooms to the river, mountains, and city beyond. The layered glass screen facade diffuses light and reflects the clouds, dematerializing the museum within the larger Sejong landscape.
Within such an artificial landscape, we began by shaping an artificial site to support an architectural artifice housing the artifacts of an urbanizing world. The scene is both unnatural and entirely real, engaged with its context but offering new perspectives toward the broader environment.
Floor Plans
Other Drawings
-
JIM
James Huemoeller
-
Landscape Architect
OtherLandsStudio - Thomas Hogge
-
Local Architect & Landscape Architect
-
Visualization