James Huemoeller to Present Recent Work at CAP

James and Katharine Huemoeller will present the recent progress on the Contrada Agnese Project at Morgantina, Sicily

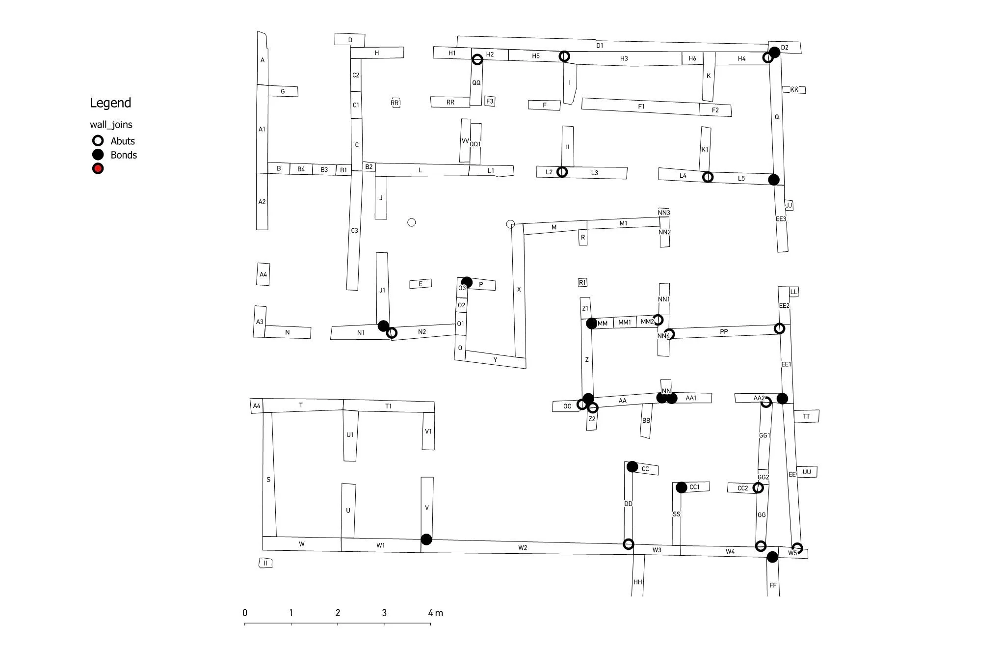
Below are some recent drawings for the Contrada Agnese Project presented at this lecture.

Previous
Previous

514 Victoria Street to Provide Much-Needed Housing Options to Historic Town

Next
Next

“Conceptualizing the Technical: Dene Nahjo Cultural and Social Innovation Centre” Studio led by James Huemoeller