Main and 7th structure is up

The steel and wood decking is installed at Main St and 7th. The project is moving forward with an anticipated completion date of mid-May. Below are images of the ongoing construction and review processes underway in coordination with the hardworking team at Tenet. Tenet is handling the canopy construction while Cedar Crest is building the rest of the Space2Place-designed park. This park will be the second completed with Cedar Crest, with Sheffield Park in Coquitlam being the other.

Render of metal panels from the fabricator

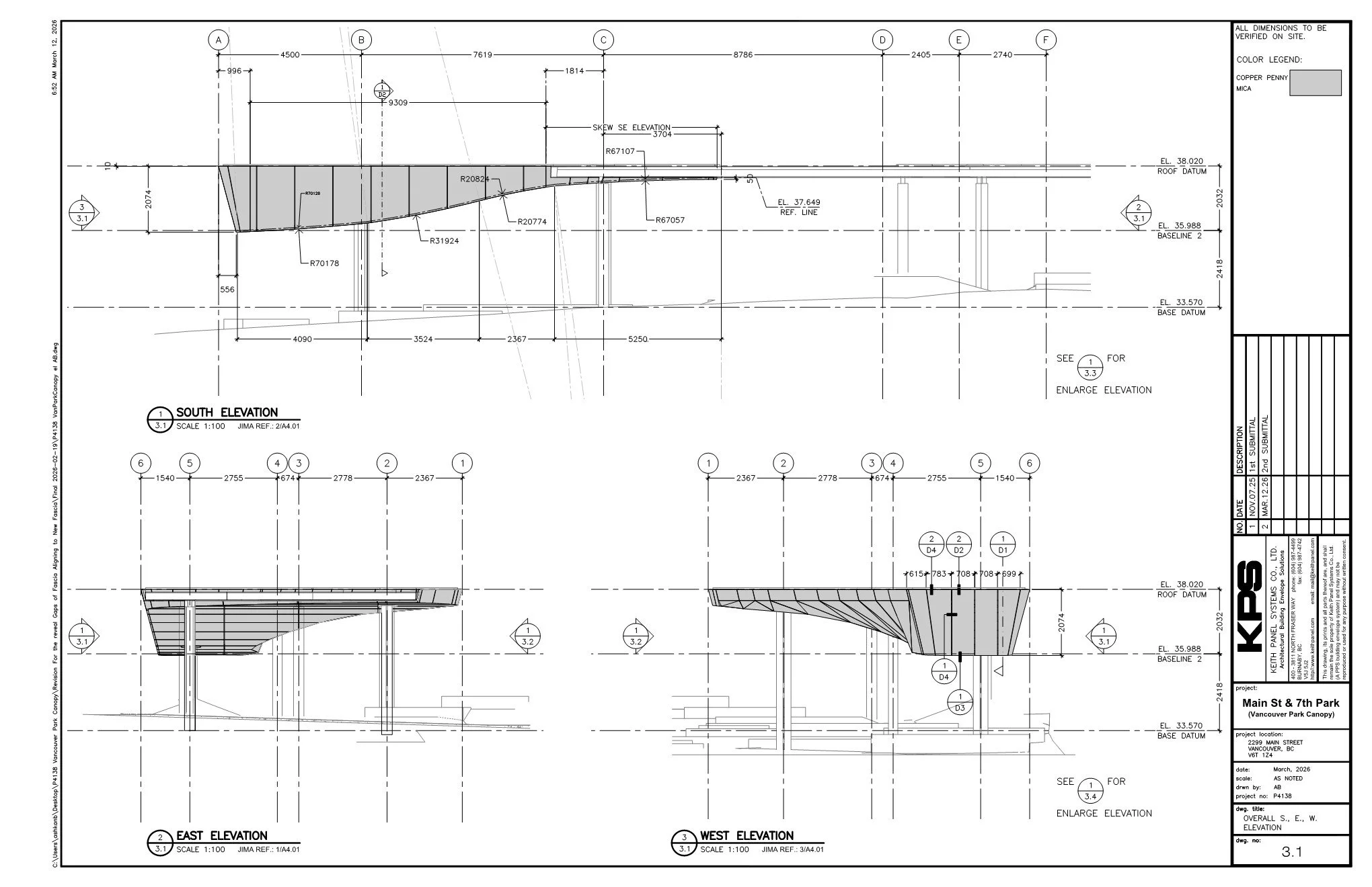
Shop drawings of the metal panels form Keith Panel Systems.

Colour samples of the metalwork. The columns will be salmon-coloured on the left, while the canopy itself will be copper-coloured.

Previous
Previous

Hot Times Interview

Next
Next

Cranbrook BC Builds Project moves forward!