How do we tell the stories of the past while making space for the future?

Davies Orchard

Complete

Bowen Island, British Columbia, Canada

2018-2025

This planning study and design for the Davies Orchard site presents a valuable opportunity to improve regional use of the Davies Orchard area of Crippen Regional Park, celebrate the orchard's unique heritage, and draw more visitors to this important public place. 

Crippen Regional Park amenities include 13 kilometres of trails for walking, hiking, cycling, and horseback riding, picnic areas, interpretive displays and features, and diverse landscapes with marine and freshwater habitats, forests, and viewpoints.

As part of the larger project, JIM is restoring six original turn-of-the-century cottages that were part of a 19th-century steamship resort, once the largest in Western North America.  In addition, JIM will develop the landscape design, including pathways, picnic areas and other amenities for the site.

Existing Interior

Existing Exterior

Cost & Complexity

The cabins were at varying states of deterioration due to weathering and lack of modern building science. Working together with the client JIM identified what areas would be the point of focus moving forward in the project so resources were spent effectively.

Old and New

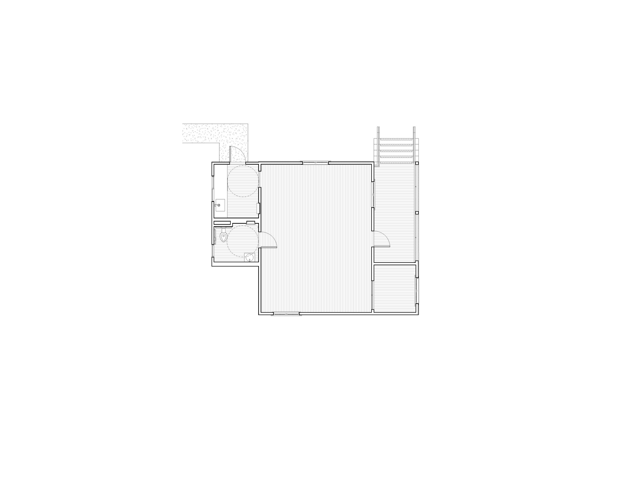
A key goal of the project was to renovate the facility to better accommodate a public program and community events while still preserving and making the long history of Davies Orchard legible. Instead of trying to make new additions blend in with the old, they contrast adding yet another layer to the history of these cabins.

Accessibility

Both the kitchens and bathrooms were made accessible to create a more inclusive design.

Interior Finishes

The original wooden flooring in the cabins was patched and restored. Many of the cabins had inconsistent raw plywood on interior walls which made the rooms feel dark and unfinished. Ultimately, it was decided to paint this plywood white to improve daylighting and allow the rooms to feel light and airy.

  • JIM

    James Huemoeller

  • Civil/Landscape

    Binnie

  • Contractor

    Signia

  • Structural

    Jansson Structural Consultants

  • Mechanical

  • Electrical

    O’M Engineering

Related Workings

Previous
Previous

Main St & 7th Park

Next
Next

22nd St Station